官网
 
客服热线:
18986298691
 
 
 
    材料选购    
    装修流程    
    家居设计    
    家装聚焦    

 

1秒变身的厨房,湖北140㎡简约风的家,惊喜又浪漫!
  返回 > 

小编经常在后台收到你们的表白, 还有各种对我们的鞭策与鼓励, 但是在这股清流中总是泥石流暗涌。 比如经常有人说“劳资随便装下就比这好100倍”, 我只能尴尬又不失礼貌的笑一下。
不管他说的是真的假的, 如果自己在家装方面不是特别在行, 就一定要不嘲笑设计的力量。 今天的屋主就对设计师充分信任, 他说想要一个清新自然不刻意的家, 能过上浪漫的二人世界, 于是他的梦想就真的实现了。
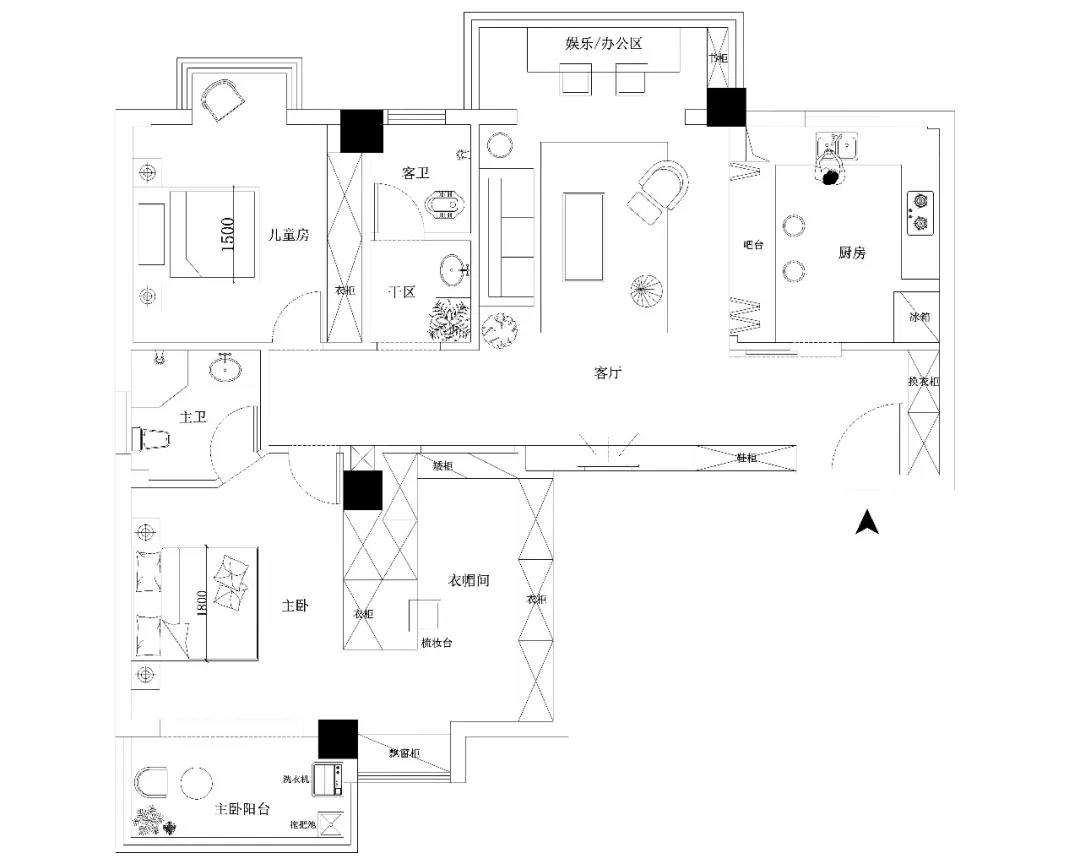
位置:湖北武汉 面积:140㎡ 户型:3室
原始户型缺陷:
1、入户就是餐厅,采光被厨房遮挡。 2、厨房小而且正对大门。 3、过道相对窄。 4、客卫过大造成浪费。 5、客厅靠北,白天光源弱。 6、主卫正对主卧的床。
屋主需求:
刚结婚的小两口需要一个备用儿童房和超大的厨房。
改造亮点:
1、餐厨合为一体,吧台两面可用,容纳十几人用餐。厨房门改为谷仓门。 2、吧台多了折叠窗,可以形成密闭空间阻挡油烟。 3、过道北移,电视区凹进去不影响走路,减小客卫面积让过道变大。 4、阳台和客厅打通拥有了充足光源。 5、原书房改为主卧衣帽间,主卫做了斜角处理,避免正对床。
入户
入户处做了大面积储物衣柜既整体又实用, 特意留出坐榻换鞋还方便外面放置衣服, 方便出门随时拿取。
客厅
过道拓宽到1.5米宽敞大气,整屋白色背景墙既亮堂, 又非常好做软装搭配。
客厅区域很大除了主灯周围还做了暗藏筒灯, 使得光源能够均匀分布。
为了不影响走路,电视区域做了凹进去的空间。
电视背景墙后边是主卧
连接客厅的部分做了折叠百叶窗, 可以引入光源也可以随时关闭。
客厅和阳台打通做成了工作区,大大的长条原木板足够两人实用。
桌子背景墙面是用水泥板做成里面还有隔音海绵, 既能防湿又能隔音降温。
厨房
整个家中最有设计亮点的就是厨房,因为它是开放式和封闭式并存的, 还结合了餐厅而存在。
吧台上的折叠窗可以随意开合,底部是大量的储物空间。
吧台台面加宽,厨房内部也可以使用 U型厨房最大限度利用了空间, 让日常烹饪更加方便。
接下来给你们普及下灯光使用,客厅筒灯是4000k的中性光; 吧台上方射灯3000k, 这种色温让食物显得更有食欲。
厨房用的是马赛克玻璃的谷仓门透光性比较好非常艺术。
餐厅
厨房和客厅两面都可以坐人最多可以容纳10几个人用餐, 平时聚会开趴完全没压力。
折叠窗顶部预留了暗藏,用了吊轨形式摆脱传统折叠窗的刻板。
因为过道往北平移,产生的多余空间做了柜子, 这个小型收纳柜里面还有wifi。
卧室
这个白色系的房间是儿童房,非常干净清爽, 床头也是唯美的不要不要的。
主灯的造型又仙又美虽然也是白色的但是晶莹剔透, 一点不影响它在C位发光。
床尾做了一整排的衣柜,深蓝色让空间更有层次感。
主卧是屋主待的时间最久的区域,所以设计师特意选用这种清新的色调; 可以让主人能放松心情休息。
主卧和阳台打通用门套分割区域,整体的窗帘也让阳台空间显得很大。
从主卧的角度看衣帽间一排又一排的柜子, 能放进去大批量衣物, 女人再也不会觉得自己没衣服穿。
衣帽间和客厅贯穿南北如果不做连接的模式太可惜; 于是设计师采用折叠百叶窗; 集密闭、通风采光于一体。
衣帽间里还有女人最喜欢的化妆台,偏中古风的梳妆台很有质感, 百叶窗边的坐榻也非常有感觉。
阳台
主卧的阳台用了绿丝绒窗帘,遮光性能特别好,又静又美。
平时一杯下午茶,晒晒太阳看看书最舒适不过。
这个文艺的阳台同时兼具洗衣房功能。
卫生间
主卧的卫生间典雅大气,深蓝色的橱柜搭配花纹大理石墙面, 再加上细节处的金色配饰, 整体都高端很多。
淋浴区利用墙角位置做收纳,整体白色调显得非常宽敞。
客卫延续了主卧卫生间的风格,开放式和封闭式柜子共存, 极大利用了空间来做收纳。
淋浴区用了玻璃做分区,可以保证干湿分离 又能让整个空间特别通透。

江南美小编     发布时间 : 2020-07-12 11:42:55


 

江南美装饰家装
征集样板间
 
您的称呼 :
 
手机号码 :
 
预约抢报名好礼
 
门案例
东原启城 - 原木 - 95㎡
海南自建别墅 - 原木 - 334㎡
祥生柏景湾 - 简约 - 158㎡
温莎半岛 - 简约 - 455㎡
天宇盛世滨江 - 中古 - 205㎡
 
门报道
1
2
3
4
5
6
7
8
9
10
11
12
13
14
15
16
17
18
19
20
 
 
武汉
本土企业
20万+
家庭选择
20年
深耕武汉
一站式
配齐所需
精准
预算系统
工艺
高标施工
联系我们
 
关于我们
在线客服
 
咨询热线:18986298691
总店地址:武汉江南美装饰雄楚大道洪福添美3层整层
** 到店前请预约,设计师为您做好准备
江南美微信
江南美小红书
鄂ICP备16005705号-3 | 鄂公网安备 42010602001302号