官网
 
客服热线:
18986298691
 
 
 
    材料选购    
    装修流程    
    家居设计    
    家装聚焦    

 

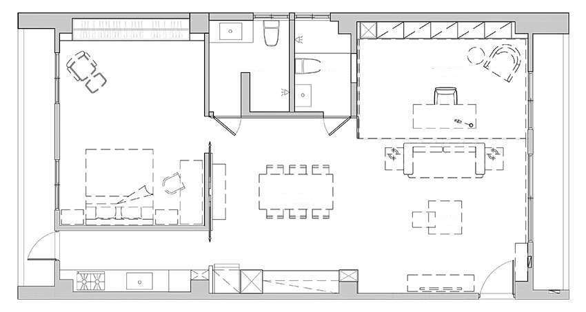
120平米 单身女子的北欧风老公寓
  返回 > 

北欧风遇到老公寓,该把装修放在哪才不会装修预算超支?老屋最害怕日后还需要不断重复修缮,建议大家一定要先重新整修空间,包括漏水、管线、设备等基础工程,其余部分最好以「减量装修」为原则,避免日后有突发状况,会更容易发现,同时减短工程期。
首先改善原本漏水屋况,并将 3 房格局缩减为 2 房,采用开放式规划,引入大量自然采光,就连原本处于内部的餐厅区域也一扫阴暗感,同时加入缤纷色彩点缀(白色砖墙、粉蓝色与粉红色门片、各种色系家具),更加符合屋主喜爱的北欧风氛围。
由于只有一人居住,希望空间能弹性灵活使用,除了选择北欧风家具混搭,方便以后随性自由改变位置外,沙发后方工作书房也运用「万象轨道」形成时而开放时而独立的区域,这是一般喜宴会议厅常见隔间设计,轨道本身可转弯,采用进口五金比起一般滑门更稳固,单手即能推动,透过具有隔音效果门片组合后(门片可订做为线板、百叶等设计),又是一间完整私密空间。下次新家改造需要隔间,不妨就按照这样来打造吧!

江南美小编     发布时间 : 2020-12-08 10:00:41


 

江南美装饰家装
征集样板间
 
您的称呼 :
 
手机号码 :
 
预约抢报名好礼
 
门案例
东原启城 - 原木 - 95㎡
海南自建别墅 - 原木 - 334㎡
祥生柏景湾 - 简约 - 158㎡
温莎半岛 - 简约 - 455㎡
天宇盛世滨江 - 中古 - 205㎡
 
门报道
1
2
3
4
5
6
7
8
9
10
11
12
13
14
15
16
17
18
19
20
 
 
武汉
本土企业
20万+
家庭选择
20年
深耕武汉
一站式
配齐所需
精准
预算系统
工艺
高标施工
联系我们
 
关于我们
在线客服
 
咨询热线:18986298691
总店地址:武汉江南美装饰雄楚大道洪福添美3层整层
** 到店前请预约,设计师为您做好准备
江南美微信
江南美小红书
鄂ICP备16005705号-3 | 鄂公网安备 42010602001302号